Σχέδιο εγκατάστασης σε χαρτί Α4 και έκθεση παράδοσης με υπολογιστή (Μέρος 5ο)
Στο παρόν άρθρο θα δούμε πώς σχεδιάζουμε τις διαδρομές των καλωδίων στο σχέδιο εγκατάστασης και…
… πώς θα παράγουμε το σχέδιο εγκατάστασης σε χαρτί Α4.
Θυμίζουμε ότι χρησιμοποιούμε την τελευταία έκδοση του προγράμματος PanelCAD για εγκαταστάτες της Ti-Soft. Μπορούμε να το κατεβάσουμε και να το τρέξουμε για ένα μήνα εντελώς δωρεάν από τον ιστότοπο www.ti-soft.com. Έτσι όλα αυτά που θα αναφέρουμε παρακάτω μπορούμε να τα πραγματοποιήσουμε στον υπολογιστή μας.
Για την ευκολότερη εκμάθηση του προγράμματος μπορούμε να αξιοποιήσουμε:
- Τα video μαθήματα
- Τις ζωντανές παρουσιάσεις
- Την πλούσια βοήθεια
Γραμμές των καλωδίων στο σχέδιο εγκατάστασης
Ξέροντας ότι η σχεδίαση των γραμμών των καλωδίων στο σχέδιο εγκατάστασης είναι το πιο εκνευριστικό μέρος της ΥΔΕ, δώσαμε ιδιαίτερη προσοχή στην απλούστευση αυτής της εργασίας.
Παρακάτω δείχνουμε τα βήματα για τη σχεδίαση της γραμμής του θερμοσίφωνα. Ξεκινάμε επιλέγοντας από τη γραμμή εργαλείων
.Το ίχνος του ποντικιού αλλάζει σε 
- Πλησιάζοντας το θερμοσίφωνα εμφανίζονται τα σημεία πιασίματος. Κλικ στο αριστερό σημείο και ορίσαμε το σημείο 1
- Μετακινούμε το ποντίκι και βλέπουμε πέντε υποψήφιες διαδρομές, παράλληλες με τα όρια του ΛΟΥΤΡΟΥ, με μεταξύ τους απόσταση 5 cm.
- Κλικ στην πρώτη διαδρομή. Κινούμαστε προς τα κάτω ή πάνω στην διαδρομή 1. Κλικ στο σημείο 3
- Συνεχίζουμε με το σημείο 4. Αν βρεθούμε σε κάποιο άλλο δωμάτιο εμφανίζονται οι νέες διαδρομές κ.ο.κ.
- Πλησιάζοντας το ποντίκι στον ηλεκτρικό πίνακα εμφανίζονται τα πιασίματα του πίνακα. Κλικ σε ένα από αυτά. Δεξί κλικ και Τέλος.
- Επιλέγουμε τη γραμμή που σχεδιάσαμε με το αντίστοιχο κύκλωμα του ηλεκτρικού πίνακα. Τώρα αν το ποντίκι περάσει πάνω από τη γραμμή βλέπουμε το καλώδιο του θερμοσίφωνα π.χ. 3x(Η07V-U 1×4)

Εικόνα 1 Ξεκινάμε επιλέγοντας από τα εργαλεία Καλώδιο-γραμμή.
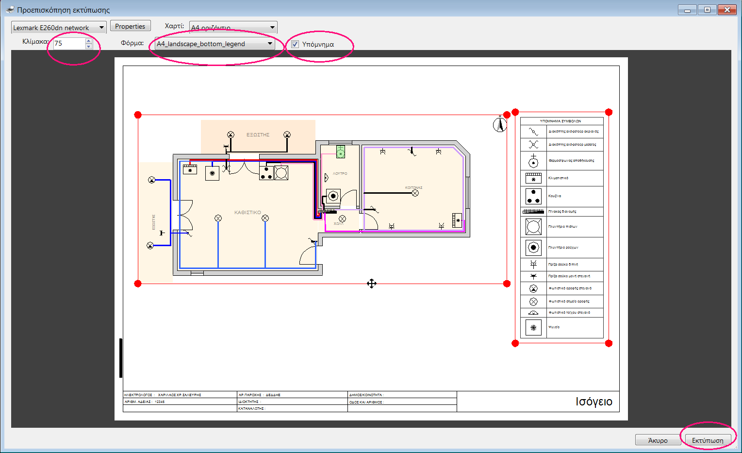
Το σχέδιο εγκατάστασης που θα παραδώσουμε
Από τα εργαλεία επιλέγουμε
και εμφανίζεται η φόρμα Ρυθμίσεις εκτύπωσης – Προεπισκόπηση.
Η φόρμα αυτή περιλαμβάνει:
- Το έντυπο π.χ. Χαρτί Α4 τοπίο (landscape)
- To σχέδιο εγκατάστασης του ορόφου που είμαστε
- Το υπόμνημα με τα σύμβολα που υπάρχουν στο σχέδιο
Ξεκινάμε επιλέγοντας την κλίμακα της κάτοψης ως εξής:
- Πληκτρολογώντας π.χ. 75 που σημαίνει 1/75
- Μετακινώνντας με το ποντίκι τα 4 κόκκινα σημεία
Με τον ίδιο τρόπο επιλέγουμε τη θέση και την κλίμακα του υπομνήματος. Το σχέδιο το στέλνουμε στον εκτυπωτή ή το αποθηκεύουμε σε αρχείο pdf, dwg, κ.ά..
Η έκθεση παράδοσης
Συνοψίζουμε τι έχουμε κάνει μέχρι τώρα:
- Στην αρχιτεκτονική κάτοψη ορίσαμε τα όρια κάθε δωματίου (και των βεραντών)
- Σε κάθε δωμάτιο βάλαμε τις ηλεκτρικές συσκευές π.χ. κλιματιστικά και τα ηλεκτρολογικά υλικά π.χ. διακόπτες
- Για κάθε υλικό ορίσαμε την ισχύ του σε W και το βαθμό προστασίας π.χ. 20 για τα απλά υλικά
Η έκθεση παράδοσης παράγεται αυτόματα (Εικόνα 5).

Εικόνα 2 Τα βήματα για τη σχεδίαση της γραμμής του θερμοσίφωνα

Εικόνα 3 Το σχέδιο εγκατάστασης ολοκληρωμένο

Εικόνα 4 Η φόρμα με την οποία επιλέγουμε τη σωστή κλίμακα

Εικόνα 5 Η έκθεση παράδοσης παράγεται χωρίς κανένα ιδιαίτερο κόπο.
Στο επόμενο άρθρο θα δούμε πώς παράγουμε τον πλήρη φάκελο της ΥΔΕ. Επίσης θα δούμε πώς παράγουμε το σχέδιο με τη διάταξη των υλικών του ηλεκτρικού πίνακα.
Aπό τον Χρήστο Σανδαλίδη H/M Μηχανικό ΕΜΠ, Υπεύθυνο ανάπτυξης τεχνικού λογισμικού της εταιρείας TiSoft