Φάκελος ΥΔΕ με το PanelCAD για εγκαταστάτες, Ερωτήσεις…(Μέρος 11-12-13-14)
Με το παρόν άρθρο, κλείνω την παρουσίαση του PanelCAD για εγκαταστάτες, ελπίζω να ήταν κατατοπιστικό για όσους διαθέτουν ήδη το…
… πρόγραμμα ή για όσους θέλουν να το αποκτήσουν.
Στο παρόν άρθρο θα ασχοληθούμε με ερωτήσεις σχετικά με την κάτοψη….
Μέρος 11
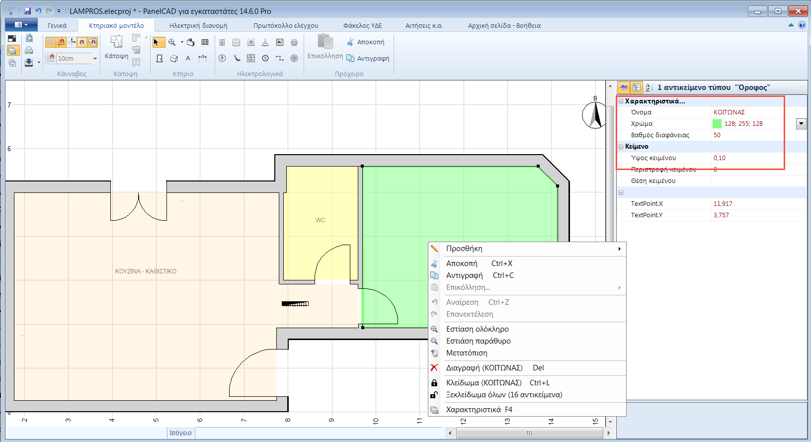
Ερώτηση 1 Πώς μπορώ να αλλάξω το όνομα ενός δωματίου, τι σημαίνει κλείδωμα/ξεκλείδωμα ενός δωματίου;
Η έννοια του δωματίου είναι καθοριστική για τον ηλεκτρολόγο εγκαταστάτη γιατί:
- συνδέεται άμεσα με την έκθεση παράδοσης
- μας επιτρέπει να σχεδιάσουμε τις γραμμές στην κάτοψη
Κάνοντας κλικ σε ένα δωμάτιο που δεν είναι κλειδωμένο, στο δεξί μέρος της οθόνης εμφανίζεται το πλαίσιο με τις ιδιότητές του (Εικόνα 1). Διορθώνουμε το όνομά του. Μία πολύ χρήσιμη ιδιότητα του δωματίου είναι το χρώμα και ο βαθμός της διαφάνειάς του που μας επιτρέπουν να τα ξεχωρίζουμε. Επειδή στο δωμάτιο προσθέτουμε ηλεκτρικές συσκευές και καλώδια, για να μπορούμε να τα επιλέξουμε με το ποντίκι, εισάγαμε τη δυνατότα κλειδώματος/ξεκλειδώματος του δωματίου. Για παράδειγμα, αν έχουμε τελειώσει με τα γεωμετρικά στοιχεία του δωματίου π.χ. χρώμα γεμίσματος, κορυφές που το περιγράφουν κ.λπ. μπορούμε να το κλειδώσουμε οπότε:
- Δε μπορούμε να το επιλέξουμε και συνεπώς να το διορθώσουμε
- Μπορούμε να επιλέξουμε εύκολα τις ηλεκτρικές συσκευές που υπάρχουν στο δωμάτιο

Εικόνα 1 Τα όρια κάθε δωματίου σχεδιάζονται με ξεχωριστό χρώμα. Οι ιδιότητες κάθε δωματίου αλλάζουν από το πλαίσιο με τις ιδιότητές του.
Ερώτηση 2 Γιατί κάθε φορά που εισάγω μία ηλεκτρική συσκευή/υλικό στην κάτοψη, αυτό χρεώνεται στο Κύκλωμα 1;
Σε μία σωστά σχεδιασμένη ηλεκτρική εγκατάσταση, κάθε συσκευή/υλικό τροφοδοτείται από ένα κύκλωμα (γραμμή) ενός πίνακα. Κάθε φορά που τοποθετούμε μία συσκευή π.χ. ρευματοδότη στην κάτοψη, το πρόγραμμα βρίσκει σε ποιό δωμάτιο είναι και αυτόματα το χρεώνει στο δωμάτιο. Όπως βλέπουμε στην Εικόνα 2, κάθε φορά που επιλέγουμε να εισάγουμε μία συσκευή π.χ. ρευματοδότη, στη δεξιά άκρη της γραμμής εργαλείων εμφανίζεται ένα πλαίσιο με το εξ’ ορισμού (default) πίνακα/κύκλωμα. Στο κύκλωμα αυτό χρεώνονται όλες οι συσκευές που θα εισάγουμε στην κάτοψη. Έτσι πριν ξεκινήσουμε να τοποθετούμε τις συσκευές στην κάτοψη θα πρέπει να φροντίσουμε να έχουμε επιλέξει πίνακα/κύκλωμα. Αν πάλι δε γνωρίζουμε ακόμα το κύκλωμα μπορούμε να επιλέξουμε το κανένα κύκλωμα. Κατόπιν μπορούμε να αλλάξουμε τον πίνακα/γραμμή από τις Ηλεκτρικές ιδιότητες της συσκευής.

Εικόνα 2 Οι ιδιότητες μίας συσκευής αλλάζουν από το δεξί πλαίσιο με τις ιδιότητες.
Ερώτηση 3 Τι σημαίνει η Πρόταση διαδρομής που υπάρχει στη γραμμή εργαλείων;
Αν επιλέξουμε να σχεδιάσουμε τη διαδρομή ενός καλωδίου (Εικόνα 3) στη γραμμή εργαλείων εμφανίζεται το πλαίσιο με τις default ιδιότητες του καλωδίου. Αν ενεργοποιήσουμε το κουμπί Πρόταση διαδρομής και υπάρχει ήδη ο πίνακας στην κάτοψη τότε:
- Κλικ στο ρευματοδότη
- Εμφανίζεται με πράσινο χρώμα η συντομότερη πολυγραμμή που συνδέει το ρευματοδότη με τον πίνακα
- Κλικ στο κείμενο Προτεινόμενη διαδρομή και την αποδεχόμαστε

Εικόνα 3 Η προτεινόμενη διαδρομή μας βοηθά να σχεδιάσουμε, χωρίς καμία προσπάθεια, σύνθετες διαδρομές καλωδίων.
Ερώτηση 4 Πώς αλλάζω το χρώμα και το πάχος ενός καλωδίου στην κάτοψη;
Το χρώμα είναι μία από τις πολλές ιδιότητες ενός καλωδίου στην κάτοψη. Απλά επιλέγουμε το καλώδιο οπότε στο δεξί μέρος της φόρμας εμφανίζεται το αντίστοιχο πλαίσιο με τις ιδιότητες του καλωδίου (Εικόνα 4). Κλικ στο πάχος και από τη φόρμα που εμφανίζεται επιλέγουμε το πάχος σε mm που θα τυπώνεται το καλώδιο στο χαρτί. Με τον ίδιο τρόπο επιλέγουμε το χρώμα και το στυλ γραμμής π.χ. διακεκομμένη. Αν έχουμε επιλέξει (με πατημένο το πλήκτρο Shift) περισότερα καλώδια, μπορούμε να αλλάξουμε ταυτόχρονα τις ιδιότητες σε πολλά καλώδια.

Εικόνα 3 Μπορούμε να αλλάξουμε το χρώμα, πάχος κ.λπ. σε πολλά καλώδια ταυτόχρονα.
Μέρος 12
Ερώτηση 1 Πώς μπορώ να προσθέσω ένα ΔΔΡ τύπου AC, ΙΔΝ =30 mA, στην άφιξη του γενικού πίνακα;
Σύμφωνα με το ΕΛΟΤ HD 384 κάθε σημείο της ηλεκτρικής εγκατάστασης πρέπει να προστατεύεται από διαρροή ρεύματος που ξεπερνά τα 30 mA. Θυμίζουμε ότι:
- το όριο ΙΔΝ = 30 mA αναφέρεται στην προστασία των ανθρώπων
- το όριο ΙΔΝ = 300 mA ή 1000 mA χρησιμοποιείται για προστασία από πυρκαγιά
- το όριο ΙΔΝ = 10 mA είναι για προστασία των ανθρώπων σε εξωτερικούς χώρους
Στην Εικόνα 1, βλέπουμε την άφιξη του γενικού πίνακα διανομής. Για να προσθέσουμε ένα υλικό κάνουμε δεξί κλικ πάνω σε κάποια φωτογραφία. Απο το αναδυόμενο μενού επιλέγουμε Προσθήκη.
Εμφανίζεται η φόρμα της Εικόνας 2 που πρακτικά είναι η βιβλιοθήκη των υλικών των πινάκων. Η βιβλιοθή αυτή περιέχει όλα τα υλικά που συναντάμε στους πίνακες διανομής οργανωμένα σε κύριες κατηγορίες π.χ. Διατάξεις Διαφορικού Ρεύματος. Κάτω από κάθε κατηγορία υπάρχουν υποκατηγορίες. Για παράδειγμα υπάρχει η υπο-κατηγορία Διάταξη διαφορικού ρεύματος , 4-πολικός, ΙΔΝ = 30 mA, τύπου AC την οποία και επιλέγουμε. Κλικ στο OK.
Επιστρέφουμε στην Άφιξη του πίνακα και στην Εικόνα 3 βλέπουμε ότι το ΔΔΡ προστέθηκε στο κάτω μέρος της λίστας με τα υλικά της άφιξης. Παράλληλα προστέθηκε στο μονογραμμικό της άφιξης.

Εικόνα 1 Επιλέγοντας Άφιξη βλέπουμε το μονογραμμικό της άφιξης μαζί με ενδεικτικές φωτογραφίες των υλικών της.

Εικόνα 2 Τα υλικά των πινάκων είναι οργανωμένα σε κατηγορίες που μας επιτρέπουν να τα βρούμε εύκολα και να τα επιλέξουμε.
Ερώτηση 2 Πώς μπορώ να αλλάξω τη θέση του ΔΔΡ στα υλικά της άφιξης του πίνακα διανομής;
Η θέση του ΔΔΡ στην άφιξη δεν είναι σωστή. Η σωστή θέση του είναι μετά από το γενικό διακόπτη. Στην Εικόνα 3, με δεξί κλικ στη φωτογραφία του ΔΔΡ επιλέγουμε Μετακίνηση πάνω. Το ΔΔΡ έρχεται πάνω από το γενικό διακόπτη και κάτω από την ασφάλεια. Αν θέλουμε να το μετακινήσουμε και πάνω από την ασφάλεια τότε επαναλαμβάνουμε την μετακίνηση.

Εικόνα 3 Το ΔΔΡ προστέθηκε στον πάτο της λίστας των υλικών της άφιξης. Το μετακινούμε προς τα πάνω.

Εικόνα 4 Η τελική μορφή της άφιξης
Ερώτηση 3 Τι θα συμβεί αν από λάθος στην Εικόνα 2, επιλέξω τον 2-πολικό αντί του 4-πολικού ΔΔΡ;
Το πρόγραμμα διαθέτει αρκετή ευφυία για να αντιληφθεί ότι σε μία τριφασική άφιξη ο 2-πολικός ΔΔΡ είναι λάθος. Έτσι αυτόματα θα αντικαταστήσει τον 2-πολικό ΔΔΡ που επιλέξαμε με τον αντίστοιχο 4-πολικό ΔΔΡ.
Στο επόμενο άρθρο θα δούμε πώς μπορούμε να έχουμε περισσότερους από ένα ΔΔΡ σε ένα πίνακα διανομής.
Μέρος 13
Ερώτηση 1 Πώς μπορώ να ασφαλίσω από διαρροή ρεύματος τη γραμμή του ψυγείου-καταψύκτη;
Σε ένα εξοχικό, ο ιδιοκτήτης μού παραπονιέται ότι συχνά αναγκάζεται να πετάξει το περιεχόμενο του καταψύκτη γιατί ο γενικός ΔΔΡ ανοίγει στη διάρκεια της απουσίας του. Αυτό συμβαίνει πιο συχνά το χειμώνα όταν πέφτουν κεραυνοί. Τι μπορώ να κάνω;
Απάντηση
1. Διακόπτης διαρροής με ενσωματωμένα στοιχεία μικροαυτόματου
Θα πρέπει να γνωρίσουμε νέα υλικά που υπάρχουν στην αγορά. Ένα τέτοιο υλικό είναι ο διακόπτης διαρροής με θερμική και μαγνητική προστασία. Στη βιβλιοθήκη υλικών πινάκων του προγράμματος υπάρχουν καταχωρημένα όλα τα υλικά που χρειαζόμαστε για να σχεδιάσουμε έναν πίνακα διανομής. Στην Εικόνα 1 βλέπουμε τους διακόπτες διαρροής με προστασία υπερέντασης (RCBO) τα οποία είναι υλικά που συνδυάζουν την προστασία των ανθρώπων με την προστασία των καλωδίων.
Στην Εικόνα 2 και 3 βλέπουμε τους RCBO των εταιρειών ΑΒΒ και HAGER αντίστοιχα. Σημειώνουμε ότι στις σελίδες αυτές πηγαίνουμε από τους συνδέσμους που υπάρχουν στο κάτω δεξιά μέρος της Εικόνας 1. Οι διακόπτες RCBO παράγονται σε μεγάλη ποικιλία. Πιο συγκεκριμένα:
- Ονομαστικό ρεύμα μικροαυτόματου, In από 10Α έως 40A
- Τύπου AC, A, APR
- Ονομαστικό ρεύμα διαρροής ΙΔn = 10, 30, 100, 300 mA
2. Τα κυκλώματα του ενικού πίνακα
Στην Εικόνα 4 βλέπουμε τα κυκλώματα του γενικού πίνακα. Τα πρώτα δύο κυκλώματα είναι οι γραμμές προς τους υποπίνακες ΠΦ2 και ΠΦ3. Οι γραμμές αυτές συνδέονται στους κύριους ζυγούς. Ακολουθούν τα κυκλώματα του γενικού πίνακα που συνδέονται στον Υποζυγό 1 και προστατεύονται από ένα ΔΔΡ AC με ΙΔn = 30mA. Στη γραμμή 13 υπάρχει το κύκλωμα του καταψύκτη που προστατεύεται από ένα RCBO με ΙΔn = 30mA κατηγορίας APR. Η κατηγορία APR εμφανίζει λιγότερη ευαισθησία σε διαρροές που προκαλούν οι κεραυνοί.
3. Μονογραμμικό σχέδιο του γενικού πίνακα
Στην Εικόνα 5 βλέπουμε το μονογραμμικό σχέδιο του πίνακα. Με τα κόκκινα πλαίσια έχουμε σημειώσει τους διακόπτες διαρροής.
4. Σχέδιο με τα υλικά του γενικού πίνακα
Στην Εικόνα 6 βλέπουμε το σχέδιο με την όψη του γενικού πίνακα. Με τα κόκκινα πλαίσια έχουμε σημειώσει τους διακόπτες διαρροής.

Εικόνα 1 Διακόπτες διαρροής με ενσωματωμένη θερμική και μαγνητική προστασία (RCBO)

Εικόνα 2 Σελίδα με RCBO από τον τιμοκατάλογο της εταιρείας ABB

Εικόνα 3 Σελίδα με RCBO από τον ελληνικό ιστότοπο της εταιρείας HAGER

Εικόνα 4 Τα κυκλώματα του γενικού πίνακα με τους κύριους ζυγούς και υποζυγούς

Εικόνα 5 Το μονογραμμικό σχέδιο του γενικού πίνακα. Με κόκκινο πλαίσιο έχουμε σημειώσει τους ΔΔΡ.

Εικόνα 6 Το σχέδιο με τα υλικά του γενικού πίνακα. Με κόκκινο πλαίσιο έχουμε σημειώσει τους ΔΔΡ.
Από τον Χρήστο Σανδαλίδη H/M Μηχανικό ΕΜΠ, Υπεύθυνο ανάπτυξης τεχνικού λογισμικού της εταιρείας TiSoft www.ti-soft.com/el