Μέση Τάση – Μέρος 5ο (Διακόπτες ισχύος – Διακόπτες φορτίου)
Συνεχίζουμε με διακόπτες ισχύος και διακόπτες φορτίου μέσης τάσης…
πως είναι κατασκευασμένοι, πως λειτουργούν, είδη διακοπτών κλπ
1) Διακόπτες ισχύος
Οι διακόπτες ισχύος (circuit-breaker) ανοίγουν και κλείνουν το κύκλωμα σε οποιεσδήποτε συνθήκες λειτουργίας, δηλ. τόσο σε κανονικές συνθήκες όσο και σε βραχυκύκλωμα.
Τα ρεύματα που μπορούν να διακόψουν είναι πάνω από 7 kA, δηλαδή, όσο το αναμενόμενο ρεύμα βραχυκυκλώματος στο δίκτυο μέσης τάσης στην Ελλάδα.
Ο διακόπτης ισχύος είναι σε θέση να αντέξει, αμέσως μετά τη σβέση του τόξου, στην επιβαλλόμενη τάση του δικτύου.
Οι διακόπτες ισχύος, ανάλογα με το ρευστό που χρησιμοποιείται για τη σβέση του τόξου χωρίζονται στις παρακάτω τρεις κατηγορίες:
-
-
- Πτωχού ελαίου (oil-minimum)
- Εξα-φθοριούχου θείου (SF6) (προφέρεται ες εφ σιξ)
- Κενού (vacuum)
Στις δεκαετίες 1970-1990 κυριάρχησε ο διακόπτης πτωχού ελαίου (ονομάστηκε έτσι σε αντιδιαστολή με τους προηγούμενους διακόπτες ισχύος που χρησιμοποιούσαν πολλαπλάσιες ποσότητες λαδιού).
-
-
- Στην τελευταία δεκαετία αντικαταστάθηκε από το διακόπτη ισχύος με SF6. Το αέριο SF6 είναι ένα αδρανές αέριο με άριστες μονωτικές ιδιότητες που βρίσκεται μέσα στους πόλους του διακόπτη ισχύος.
-
- Οι διακόπτες ισχύος με κενό χρησιμοποιούν σαν μονωτικό το κενό, δηλαδή την έλλειψη οποιουδήποτε αερίου. Δεν πρέπει να ξεχνάμε ότι το απόλυτο κενό είναι το τέλειο μονωτικό.

Οι φάσεις κατά την σβέση του τόξου σε ρεύμα βραχυκυκλώματος στο πόλο ενός διακόπτη ισχύος SF6
Πολλές φορές το συναντάμε και σαν ισχύ συμμετρικού βραχυκυκλώματος στη μέση τάση S = 250 MVA.
Αυτό προκύπτει από τον γνωστό τύπο S = √3 • U • I = 1,73 • (20 kV) • (7 kA) ≈ 250 MVA
Τομή ενός διακόπτη ισχύος |
Αρχή μηχανικής λειτουργίας διακόπτη ισχύος |
Διακόπτες Ισχύος επί φορείου
Τους διακόπτες ισχύος επί φορείου τους συναντάμε και με το όνομα συρόμενοι ή συρταρωτοί.
Όπως φαίνεται στην Εικόνα ,ο διακόπτης ισχύος πτωχού ελαίου είναι τοποθετημένος σε φορείο με ρόδες. Κάθε πόλος του διακόπτη περιλαμβάνει δύο βυσματωτές επαφές που του επιτρέπουν να συνδέεται και να αποσυνδέεται από το κύριο κύκλωμα.
Μετά το άνοιγμα (opening) του διακόπτη ισχύος μπορούμε να τον τραβήξουμε και να δημιουργήσουμε έτσι μια ικανή απόσταση (περίπου 20 cm). Η απόσταση αυτή θεωρείται απόσταση ασφαλείας για τη δημιουργία απομόνωσης.
Έτσι οι κυψέλες μέσης τάσης που φιλοξενούν τους διακόπτες ισχύος επί φορείου δε χρειάζεται να περιλαμβάνουν διακόπτη απομόνωσης (αποζεύκτη), τόσο στην πλευρά των ζυγών όσο και στην πλευρά του καλωδίου.
Το κόστος του διακόπτη αυτού σε συνδυασμό με την αντίστοιχη κυψέλη που θα τον φιλοξενήσει, είναι αρκετά υψηλότερο από το συνδυασμό του σταθερού διακόπτη ισχύος και του αποζεύκτη φορτίου.
Έτσι τον συναντάμε στα πρωτογενή δίκτυα διανομής μέσης τάσης, δηλαδή στους κεντρικούς υποσταθμούς της ΔΕΗ ή στους σταθμούς παραγωγής Ηλεκτρικής Ενέργειας.

Διακόπτης ισχύος επί φορείου
Τα μέρη του διακόπτη ισχύος
Ανεξάρτητα από το μονωτικό μέσο (λάδι, SF6, κενό) που χρησιμοποιείται για τη σβέση του τόξου και το εργοστάσιο κατασκευής τους, όλοι οι διακόπτες ισχύος αποτελούνται από τα ίδια μέρη.
Στην Εικόνα βλέπουμε ένα διακόπτη ισχύος SF6 ονομαστικής τάσης 24 kV και ονομαστικού ρεύματος 400 Α. Στην εικόνα έχουν σημειωθεί με αριθμούς από το 1 ως το 10 τα μέρη του διακόπτη ισχύος που ενδιαφέρουν άμεσα το συντηρητή του υποσταθμού.
Στον παρακάτω πίνακα αναλύονται οι αριθμοί που υπάρχουν στην Εικόνα.
Διατηρήσαμε και τις αγγλικές εκφράσεις, διότι τα τεχνικά φυλλάδια που συνοδεύουν τους διακόπτες, σπάνια είναι μεταφρασμένα στα Ελληνικά.
Εκτός από τα μέρη του διακόπτη ισχύος που φαίνονται στην Εικόνα, υπάρχουν μια σειρά από εξαρτήματα που αποτελούν το μηχανισμό λειτουργίας του διακόπτη ισχύος και τα οποία περιγράφονται παρακάτω:
Ο μηχανισμός λειτουργίας του διακόπτη ισχύος βασίζεται σε δύο ελατήρια που αποθηκεύουν μηχανική ενέργεια, όταν τανυστούν (τεντωθούν). Τα δύο ελατήρια είναι:
- το ελατήριο κλεισίματος
- το ελατήριο ανοίγματος
Τα δύο ελατήρια ξεχωρίζουν από το μέγεθός τους. Το ελατήριο κλεισίματος είναι μεγαλύτερο και, συνεπώς, ισχυρότερο από το ελατήριο ανοίγματος, επειδή το ελατήριο κλεισίματος τανύζει το ελατήριο ανοίγματος.
Η απελευθέρωση και των δύο ελατηρίων δίνει κίνηση στον ίδιο άξονα. Στον άξονα αυτό συνδέονται με μοχλούς από μονωτικό υλικό, οι κινητές επαφές του διακόπτη ισχύος.
Η απελευθέρωση του ελατηρίου κλεισίματος περιστρέφει τον άξονα, έτσι ώστε οι κινητές επαφές να έλθουν σε επαφή με τις ακίνητες επαφές και ο διακόπτης κλείνει.
| 1 | Ηλεκτρονόμος υπερέντασης | Overcurrent release |
| 2 | Μοχλός για τη μηχανική τάνυση του ελατηρίου κλεισίματος | Shaft for manual closing spring charging |
| 3 | Κουμπί ανοίγματος | Opening knob |
| 4 | Κουμπί κλεισίματος | Closing knob |
| 5 | Ένδειξη ότι το ελατήριο κλεισίματος είναι: – τανυσμένο (κίτρινο) – ατάνυστο (λευκό) | Signal for closing springs charged (yellow) and discharged (white) |
| 6 | Συσκευή μπλοκαρίσματος και ένδειξης της πίεσης του αερίου SF6 | Device for locking and signalling the state of SF6 gas |
| 7 | Ένδειξη ανοικτός / κλειστός διακόπτης ισχύος | Circuit-breaker open/closed signalling device |
| 8 | Ακροδέκτες μέσης τάσης | Medium voltage terminals |
| 9 | Μετασχηματιστές έντασης για τον ΗΝ υπερέντασης | Current sensor for ovecurrent releases |
| 10 | Πόλος διακόπτη ισχύος | Circuit-breaker pole |
H απελευθέρωση του ελατηρίου ανοίγματος περιστρέφει τον άξονα κατά την αντίθετη φορά, ώστε οι κινητές επαφές να απομακρυνθούν από τις ακίνητες επαφές και ο διακόπτης ανοίγει.
Η λειτουργία του αυτόματου διακόπτη ξεκινά με την τάνυση του ελατηρίου κλεισίματος. Η τάνυση του ελατηρίου κλεισίματος μπορεί να γίνει:
- Χειροκίνητα με ένα μοχλό (μανιβέλα) (2)
- Ηλεκτρικά με τη βοήθεια ενός μικρού ηλεκτρικού κινητήρα που λειτουργεί με ΣΡ ή ΕΡ
Το ελατήριο κλεισίματος, αφού τανυθεί, αυτοσυγκρατείται.
απελευθέρωση του ελατηρίου κλεισίματος μπορεί να γίνει:
- Χειροκίνητα με το κουμπί κλεισίματος (4)
- Ηλεκτρικά στέλνοντας ρεύμα στο πηνίο του ηλεκτρομαγνήτη κλεισίματος (closing solenoid)
Η απελευθέρωση του ελατηρίου κλεισίματος τανύζει το ελατήριο ανοίγματος που αυτοσυγκρατείται.
Η απελευθέρωση του ελατηρίου ανοίγματος μπορεί να γίνει:
-
- Χειροκίνητα με το κουμπί ανοίγματος (3)
- Ηλεκτρικά στέλνοντας ρεύμα στο πηνίο του ηλεκτρομαγνήτη ανοίγματος (opening solenoid, shunt release, trip coil)

Διακόπτης ισχύος SF6
Χαρακτηριστικά μεγέθη των διακοπτών ισχύος
Στα φυλλάδια των κατασκευαστών υλικών μέσης τάσης (διακόπτες ισχύος, μετασχηματιστές ισχύος και μέτρησης, καλώδια κ.ά.) συναντάμε μια σειρά από έννοιες που χαρακτηρίζουν τις δυνατότητες αλλά και την αντοχή του υλικού. Η γνώση των εννοιών αυτών είναι καθοριστική στο μελετητή για να κάνει τη σωστή επιλογή των υλικών. Στο συντηρητή ηλεκτρολόγο, η γνώση των εννοιών αυτών είναι απαραίτητη για τη σωστή και ασφαλή λειτουργία του υποσταθμού αλλά και της ίδιας του της ζωής. Τις έννοιες (=χαρακτηριστικά) αυτές τις χωρίζουμε σε δύο κατηγορίες:
- σε αυτές που αναφέρονται στην αντοχή της μόνωσης (αντοχή τάσης), και
- σε αυτές που αναφέρονται στην αντοχή στη διέλευση του ρεύματος.
Χαρακτηριστικά που αναφέρονται στην αντοχή σε τάση
-
- Ονομαστική τάση (Rated voltage) είναι η τάση για την οποία έχει κατασκευαστεί να λειτουργεί συνεχώς ο διακόπτης ισχύος. Για όλα τα υλικά μέσης τάσης (20 kV) η τάση αυτή είναι 24 kV, δηλαδή είναι 20% μεγαλύτερη από την τάση λειτουργίας.
- Αντοχή σε εναλλασσόμενη τάση συxνότητας 50 ΗΖ (Withstand voltage at 50 ΗΖ) είναι η τάση στη οποία αντέχει ο διακόπτης ισχύος για χρόνο 1 min. Με την τάση αυτή δοκιμάζεται στο εργοστάσιο κατασκευής του κάθε πίνακας μέσης τάσης, γι’ αυτό και λέγεται δοκιμή σειράς. Για όλα σχεδόν τα υλικά μέσης τάσης, η τάση δοκιμής είναι 50 kV.
- Αντοχή σε κρουστική τάση (Impulse ithstand voltage) είναι η κρουστική τάση (παρόμοια με την τάση που δημιουργεί ένας κεραυνός). Με την τάση αυτή δοκιμάζεται σε ειδικά εργαστήρια ένας πρότυπος διακόπτης ισχύος, γι’ αυτό και λέγεται δοκιμή τύπου. Για όλα σχεδόν τα υλικά μέσης τάσης, η τιμή της κρουστικής τάσης είναι 125 kV.
Χαρακτηριστικά που αναφέρονται στην αντοχή σε ρεύμα
- Ονομαστικό ρεύμα (Rated normal current) είναι το ρεύμα για το οποίο έχει κατασκευαστεί να λειτουργεί συνεχώς ο διακόπτης ισχύος. Συνήθως είναι 400 Α και πάνω.
- Ονομαστικό ρεύμα απόζευξης σε βραχυκύκλωμα ( Rated breaking capacity) είναι το ρεύμα του βραχυκυκλώματος που μπορεί να ανοίξει ο διακόπτης ισχύος με ασφάλεια, δηλαδή χωρίς να καταστραφεί. Συνήθως είναι 8 kA και πάνω. Το ρεύμα αυτό πρέπει να το αντέξει για τουλάχιστον 3 s, δηλαδή όσο χρόνο θα χρειαστούν οι διάφορες προστασίες για να δώσουν την εντολή απόζευξης. Αν η προστασία δε δουλέψει και το ρεύμα βραχυκυκλώματος ξεπεράσει τα 3 s τότε το σίγουρο είναι ότι ο διακόπτης ισχύος θα καταστραφεί δημιουργώντας μεγάλες υλικές ζημιές και ίσως ανθρώπινες απώλειες.
- Ονομαστικό ρεύμα ζεύξης σε βραχυκύκλωμα (Making breaking capacity) είναι το ρεύμα που μπορεί να κλείσει με ασφάλεια ο διακόπτης ισχύος, στην περίπτωση που κλείνει σε βραχυκύκλωμα. Συνήθως είναι από 20 kA και πάνω.

(1) Εναλλασσόμενη τάση συχνότητας 50Ηz ενεργούς τιμής 50kV
(2) Κρουστική τάση 1,2/50 μs
Ιδιαίτερα χαρακτηριστικά των διακοπτών ισχύος SF6
Ιδιαίτερα κρίσιμο στοιχείο στους διακόπτες ισχύος SF6 είναι η πίεση του αερίου SF6 που υπάρχει μέσα στους πόλους. Η πίεση του αερίου είναι περίπου 0,5 bar μεγαλύτερη από την ατμοσφαιρική πίεση. Αν και οι πόλοι είναι σφραγισμένοι από το εργοστάσιο, σε περίπτωση που έχουμε διαρροή του αερίου σε κάποιον από τους τρεις πόλους, τότε ο διακόπτης ισχύος θα αστοχήσει στην επόμενη εντολή διακοπής και αυτό μπορεί να είναι μοιραίο.
Συνήθως οι διακόπτες ισχύος SF6 είναι εφοδιασμένοι με ειδικό μηχανισμό που ελέγχει την πίεση του αερίου. Σε περίπτωση ελαττωμένης πίεσης σε κάποιον από τους πόλους δίδεται ένδειξη και ταυτόχρονα μπλοκάρεται το κλείσιμο του διακόπτη ισχύος.
Ιδιαίτερα χαρακτηριστικά των διακοπτών ισχύος πτωχού ελαίου
Ιδιαίτερα κρίσιμο στοιχείο στους διακόπτες ισχύος πτωχού ελαίου είναι ο έλεγχος της στάθμης και η ποιότητα του μονωτικού λαδιού που υπάρχει στους πόλους.
Αυτό γίνεται εύκολα, διότι οι μπουκάλες των πόλων είναι από διαφανές υλικό (πλεξιγκλάς ενισχυμένο με υαλόνημα) και έτσι εύκολα μπορούμε να ελέγχουμε τη στάθμη. Η συμπλήρωση με ειδικό λάδι γίνεται σύμφωνα με τις οδηγίες του κατασκευαστή. Η ποιότητα του λαδιού ελέγχεται συνήθως οπτικά βλέποντας το χρώμα του. Αντικατάσταση στο λάδι πρέπει να γίνεται μετά από έναν αριθμό κανονικών χειρισμών (συνήθως 500 χειρισμοί).
Οι διακόπτες ισχύος θα πρέπει να επιθεωρούνται μετά από κάθε διακοπή βραχυκυκλώματος.

Μοριακή δομή του αερίου SF6
2) Διακόπτης Φορτίου
Διακόπτης φορτίου με ασφάλειες HRC
Ο διακόπτης φορτίου από μόνος του – επειδή δεν έχει την ικανότητα να διακόψει το ρεύμα βραχυκυκλώματος – δε μπορεί να χρησιμοποιηθεί ως μέσο προστασίας.
Σε συνδυασμό όμως με ασφάλειες HRC μπορεί να λειτουργήσει ως μέσο προστασίας των καλωδίων ή του μετασχηματιστή ισχύος.
Ο συνδυασμός αυτός ονομάζεται και ασφαλειο-διακόπτης φορτίου ή ασφαλειο-αποζεύκτης φορτίου (Fuse-Load switch). Τον συναντάμε κατά κανόνα ως μέσο προστασίας μετασχηματιστών μέχρι 630 kV Α.
Σε περίπτωση σφάλματος (βραχυκυκλώματος) τήκεται κάποια από τις τρεις ασφάλειες και απελευθερώνεται ο δείκτης λειτουργίας της (striker).
Ο δείκτης κτυπά με δύναμη ένα μηχανισμό από μοχλούς που καταλήγει στην απελευθέρωση του ελατηρίου ανοίγματος και στο αυτόματο άνοιγμα του διακόπτη φορτίου.
Ο διακόπτης φορτίου ανοίγει χωρίς να διακόπτει το ρεύμα σφάλματος, το οποίο έχει ήδη διακοπεί από την τηκτή ασφάλεια. Για να μπορέσει να ξαναλειτουργήσει η εγκατάστασή μας, πρέπει να αντικαταστήσουμε και τις τρεις ασφάλειες με νέες, διότι το ρεύμα σφάλματος μπορεί να έχει αλλοιώσει το τηκτό και σε κάποια άλλη φάση.

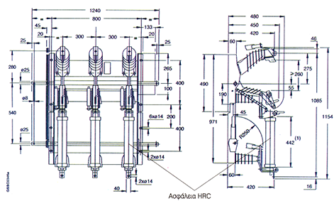
Διαστάσεις σε mm ασφαλειοαποζεύκτη φορτίου ονομαστικής τάσης 24 kV
Σβέση τόξου με φύσημα αέρα στο διακόπτη φορτίου
Τη χρονική στιγμή της αποχώρησης των επαφών ενός διακόπτη δημιουργείται ένα ηλεκτρικό τόξο. Η ασφαλής σβέση του τόξου αποτελεί το πλέον κρίσιμο σημείο στη λειτουργία ενός διακόπτη φορτίου.
Στην παρακάτω εικόνα βλέπουμε τον ειδικό μονωτήρα που υπάρχει σε κάθε πόλο του διακόπτη φορτίου που χρησιμοποιεί την τεχνική του φυσήματος αέρα για τη σβέση του τόξου. Ο μονωτήρας είναι κούφιος και το εσωτερικό του σχηματίζει ένα κύλινδρο. Μέσα στον κύλινδρο υπάρχει ένα
έμβολο, που παίρνει κίνηση από τον κύριο άξονα του διακόπτη, με τη βοήθεια ενός μηχανισμού μοχλών από μονωτικό υλικό.
Με το άνοιγμα του διακόπτη, αρχίζει η συμπίεση του αέρα με τη βοήθεια του εμβόλου. Ο αέρος αυτός εξέρχεται από ειδικά ακροφύσια που υπάρχουν στην ακίνητη επαφή. Η κίνηση του εμβόλου συγχρονίζεται με την κίνηση των κύριων επαφών του διακόπτη, ώστε η παροχή του αέρα να είναι
πολύ δυνατή, τη στιγμή που αποχωρίζονται οι επαφές και το ηλεκτρικό τόξο είναι πολύ έντονο.
Ο δυνατός αέρας βοηθά στη διάχυση του τόξου και την ταυτόχρονη ψύξη του, με αποτέλεσμα να σβήνει γρήγορα.
![]() |
![]() |
| Εξωτερική όψη κούφιου μονωτήρα και τομή μονωτήρα και αρχή λειτουργίας |
Πηγή: ti-soft.com/el

